If you have a four-car garage, you need this setup. This is everything you need, from lights to controls (both app-based and physical) to plans to help you build out the most insane garage lighting you’ve ever dreamed of. For this Ultimate version of our Four Car Garage Lighting Solution, we’ve upgraded the controls system to Lutron’s Radio Ra2 Select, which will give you an incredibly easy setup and app control over zones and dimming.
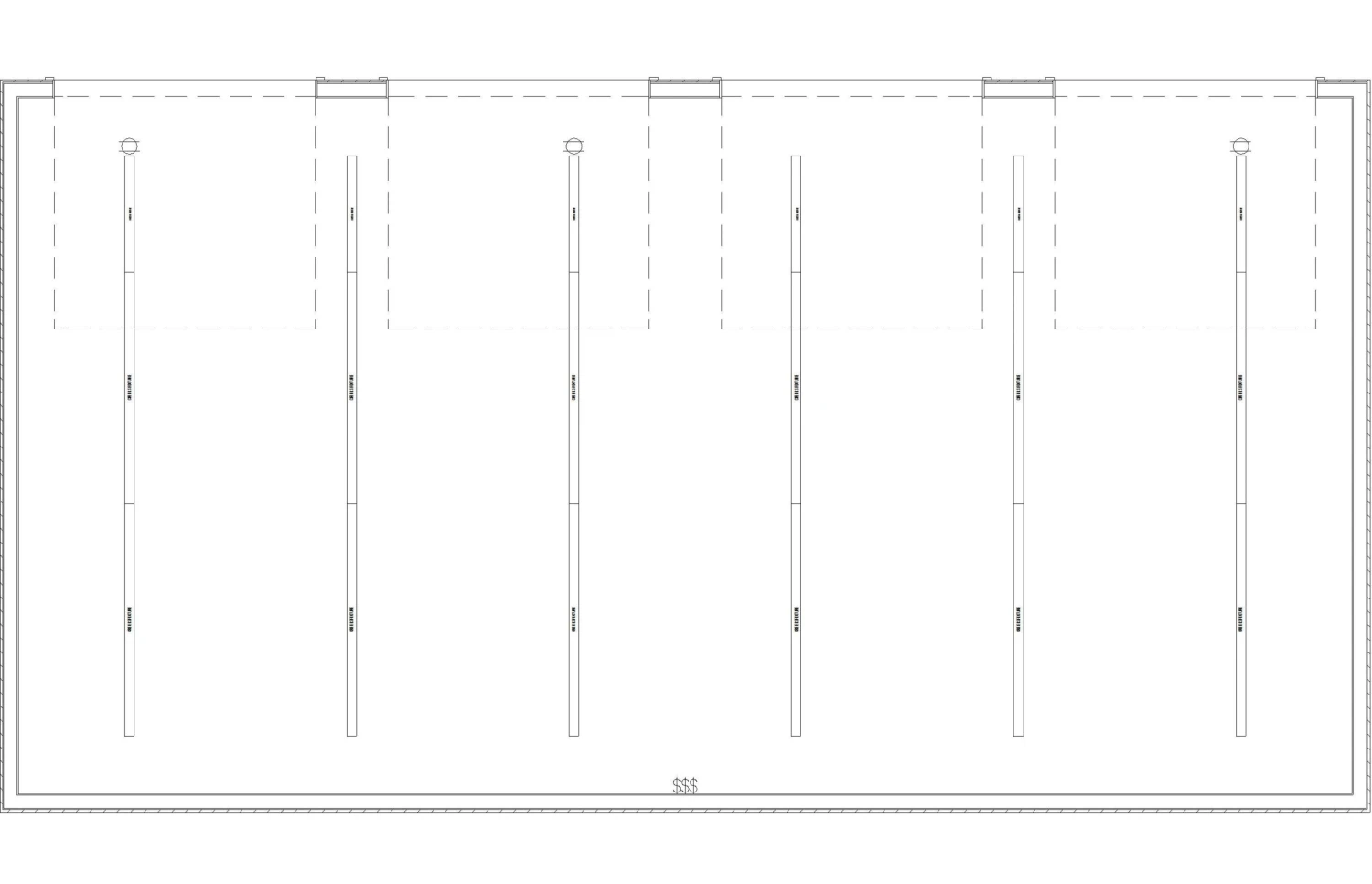
The heart of this solution is the Cree Lighting LS Series fixtures which provide even and diffused lighting throughout the garage. At 90+ CRI, high lumen output, and 5000K temperature, you can know that you’re getting the perfect specs for high-end garage lighting. Since most four-car garages are deeper than their two-car and three-car counterparts, this solution is specced out with extra lights to account for the added depth. Each linear section that runs front to back will be made up of two LS 8-foot fixtures and one LS 4-foot fixture for great light coverage.
Technical Drawing Download

























Reviews
There are no reviews yet.